
0755 8695 1210 別墅/大宅-尊贵热线



引言
自然之间,快慢之间。久居繁华而又嘈杂的都市,内心深处总会生出一份对大自然的渴望。这里有宽敞的大空间,雅致又沉稳的绿色,似是绿野仙踪般误入浓郁草木清香的密林,让人有安静感,展现自然本真的崇尚与回归。
本次案例展示的是轻奢的品质感和调性,整洁、明亮的空间感。落地窗内,洒了一地的明媚,窗外,繁衍了满地的苍翠。设计师结合木饰面材质,延伸空间尺度,促进更多的互动和交流,让整个家富有美感和层次感。

项目概况/ Project addres:深圳·东方花园
项目面积 / project area:775㎡
项目风格 / project style:现代偏轻奢风格
项目设计 / project designe:张春来、萧立圆
项目出品 / Project manager:誉巢别墅装饰

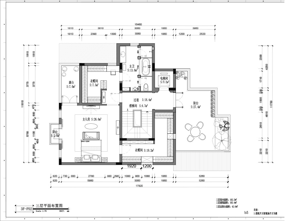
平面布置方案

客餐厅
我们以简约原生态的设计手法营造居家般的舒适,让家回归自然,独立又有联系,享受生活细碎般的温暖。
用灰色、白色粗犷不羁的纹理来表现高级感,搭配文雅的原木风竖条格栅收敛大理石墙面的光芒。以地板和其他墙面微妙的哑光气质来反衬另一场域的剔透光感,这既是一种情感的表达,也是彰显业主品位性格及追求。

空间中不同区域的体块穿插,以及纵横向的简洁线条呈现出面与面之间的立体层次。设计师对尺寸、体量进行反复平衡,同时对储物空间进行合理布置,让整个空间有一种和谐的氛围和高级的审美风格。

卧室
超大的落地窗,让整体干净通透,并通过中性明亮的色调,结合木饰面,营造一个舒适温润的室内空间。
主卧内注入蓝色元素的水墨画和床尾凳,以及简练明朗的空间布置,呈现出自然纯粹的感官感受。

空间最为吸睛的亮点在床头上的星空墙绘,颇具未来元素独有的神秘与科技感,以及一整墙的柜子,通过合理的布置和空间分配,让柜子连接书桌,利用相互咬合的设计,保证男孩喜欢的手办有充足的收纳区域和展示空间。
同时摆上三两碧绿的植株,让空间不浪费不单调,以自然风贯穿客餐厅和居室,焕发生机盎然的美好生活气息。

蓝花丹花开满园,项目已经开工了,想参观本案工地的,可以后台留言哦~


设计院长
张春来
设计孕育于生活,
每一步的美好前行,
都离不开对生活的深入感知。
设计总监
萧立圆

现代轻奢、自然,
充分利用自然的采光和通风。


985别墅装饰全案服务商
客户满意度≥98%
项目还原度≥95%
电话:400-004-6868
誉巢别墅装饰•深圳南山设计院
地址:深圳南山区北环大道10076号誉巢文化创意园
誉巢别墅装饰•深圳龙岗设计院
地址:深圳市龙岗区黄阁北路天安数码城1栋B座803
誉巢别墅装饰•广东顺德设计院
地址:佛山市顺德区大良沿江大道万科金域滨江商业
别墅区3号楼
誉巢别墅装饰•广东惠阳设计院
地址:广东省惠州市惠阳区白云二路诚杰壹中心 A栋
1316-1319室
誉巢别墅装饰•广东珠海设计院
地址:广东珠海市香洲区粤海中路森宇富通1座1503