
0755 8695 1210 別墅/大宅-尊贵热线

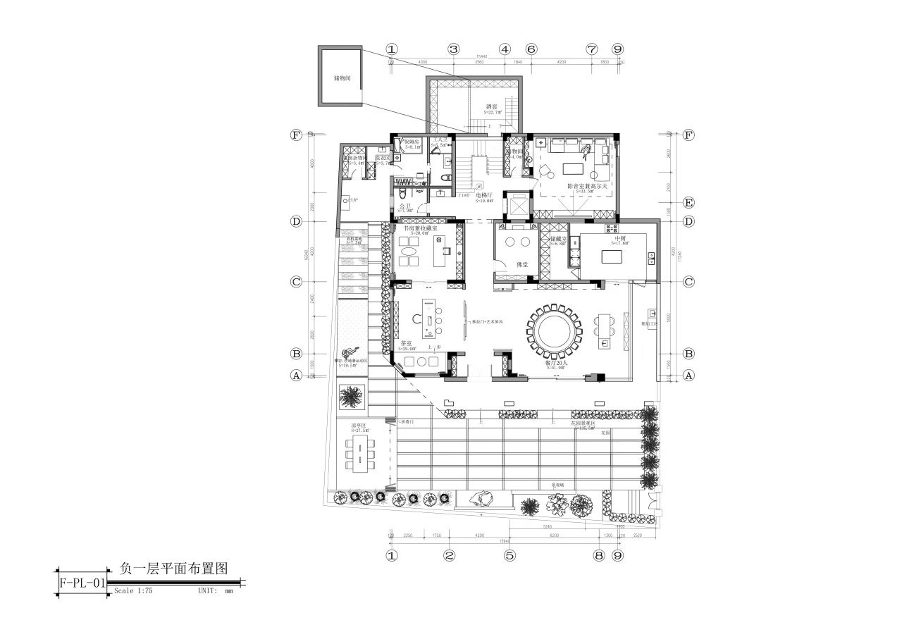
户型改造
Huxing renovation

✿ 设计亮点
· 重组空间,保障室内通透宽敞、交通流线顺畅,体现大宅风范
· 发掘、完善居住功能,满足居住者的喜好及对品质的需求
· 休息区考量朝向、景观及私密性,提升居住体验

玄关 / Front door
推门而入,对称之美扑面而来。仿佛在诉说着中式传统的平衡与和谐,尽显中式韵味。让进入到空间的每个人都倍感平和,体悟归家的仪式感。

中堂 / Central scroll
挑高的天花板,搭配精致的木质横梁与立柱,展现出中式建筑的雄浑与古朴。采用借景、透景的手法,将室外生趣回旋至室内。拓宽视野的同时,空间的深度与格调不彰自显。
是家人团聚的温馨场所,更是可举行家族会议的庄严之地。在温暖的灯光下,亲情与责任交织,智慧与勇气碰撞,共同书写着家族的辉煌篇章。

餐厅 / Dining room
进入餐厅,圆形餐桌最为醒目,庞大的身躯足以容纳家族成员的欢聚。餐厅侧面别具一格地设置了西厨区域,现代化的设备与中式的典雅和谐共存。
吊顶层次分明,巧妙的区分两个空间。灯光与自然光交汇,注入温暖的生活气息。畅谈人生,共度欢乐时光。

家庭厅 / Family room

手工DIY区 / Manual area
欲感悟亲情可贵,自然倍加珍惜与家人的共处。布艺沙发、毛绒地毯、暖色灯光……相对于中堂,这里的氛围更显温馨。作为家庭共享和互动的空间,双厅空间,给予三代人的日常休娱。
多处采光窗,让阳光肆意倾洒,照亮每一个值得纪念的瞬间。

茶室 / Teahouse
“清静即奢华”踏入中式茶室,古雅气息扑面而来。栅格的窗帘,檀木的桌椅,精致的茶具。茶香袅袅,让人忘却尘世喧嚣。
与友人细品香茗,谈天说地,感受岁月静好,领略中式韵味。

书房&收藏室 / Book&collection room
置身其中,时光仿佛凝固,墨香与岁月的气息相互交融。沉浸在知识与艺术的世界中,感受着中式文化的独特魅力。
不仅是主人品味和喜好的展现,更是传承和弘扬中华文化的精神角落。

影音室 / Video room
白色与木色在此交织,营造出独特的视觉盛宴。灯带柔和地散发着光芒,如同洒下的月光,照亮了这个充满艺术气息的空间。
有着极简气质的投影幕布,处于这东方格调的场域中毫无违和感。

影音室 / Video room
白色与木色在此交织,营造出独特的视觉盛宴。灯带柔和地散发着光芒,如同洒下的月光,照亮了这个充满艺术气息的空间。
有着极简气质的投影幕布,处于这东方格调的场域中毫无违和感。

影音室 / Video room
白色与木色在此交织,营造出独特的视觉盛宴。灯带柔和地散发着光芒,如同洒下的月光,照亮了这个充满艺术气息的空间。
有着极简气质的投影幕布,处于这东方格调的场域中毫无违和感。


主卧 / Master BedRoom
卧室采用了中式花鸟为背景,肆意灵动。并通过对称的方式陈列床头柜、吊灯及吊顶,寓意“和谐”,素雅的配色亦难掩雍容婉丽之气。作为屋主的私人空间,尽显尊贵与奢华。
套卫简约的设计在低调中流露着对品质的追求。

套房一 / Suite
在素装淡雅的的环境中,柔和温馨的光源使墙体层次丰富,悄然间营造高档的奢侈感。

套房二 / Suite
与整体空间的取材相似,白色与木色烘托整体温馨、宜居的氛围,以“简”显“雅”。
_
项目信息
Project information

项目地址 / 深圳 · 曦城
项目面积 / 900㎡
项目风格 / 新中式
设计团队 / 刘聪颖王咨
项目类型 / 全案独栋别墅设计